955 Ebenezer LaneMilton, GA 30075
Due to the health concerns created by Coronavirus we are offering personal 1-1 online video walkthough tours where possible.




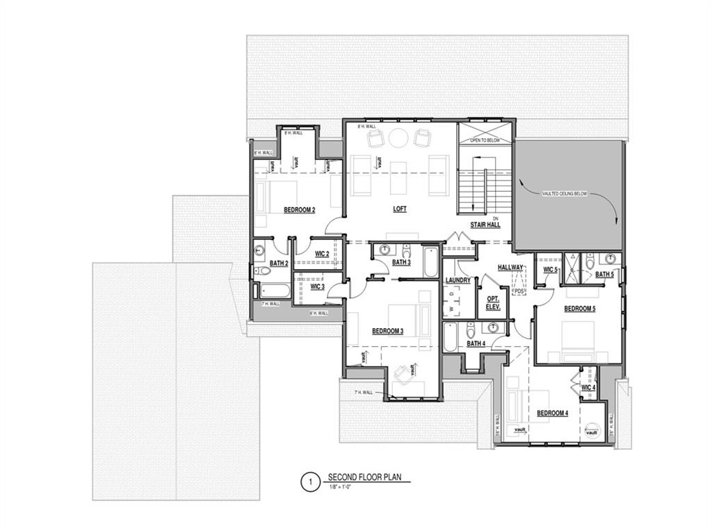
Introducing The Ridge at Sweet Apple, A Rare Collection of 19 Custom Homes, where the tranquility of nature meets the sophistication of modern living. As the final phase of the highly coveted Sweet Apple neighborhoods, The Ridge presents an extraordinary opportunity to own in one of Milton’s most distinguished communities. This elevated custom home is designed for an unparalleled lifestyle. Step inside to a stunning open floor plan highlighted by bright open spaces, hardwood floors (throughout), and gorgeous appointments. The gourmet kitchen showcases custom Bell Cabinetry Studio Collection cabinetry, a 48” range, 24” freezer and fridge columns, walk-in service pantry, and professional-grade appliances, overlooking the elegant dining and living areas. The expansive family room extends outdoors through elegant sliders to a large, covered deck overlooking a private wooded backyard. A dedicated work-from-home office, mudroom, and large pantry/scullery add to the home’s thoughtful design. The main-level primary suite is a true retreat, featuring serene views, spa-like finishes, and spacious his and hers custom closets with direct access to a private laundry room. Upstairs, four generously sized bedroom suites each offer walk-in closets and private baths. The 2nd floor also features a large loft area, perfect for an entertainment system or quiet reading, as well as a secondary laundry room. The partially finished terrace level provides endless future possibilities—media room, gym, game room, or additional guest suites—all with walkout access to the private backyard. Built as a Zero Energy Ready Home, every detail is crafted for efficiency and comfort, including open-cell spray foam insulation throughout, tankless water heater, and high-end Anderson clad windows. Residents enjoy access to a private, 20-acre nature preserve complete with two fire pits, a fishing dock, bocce ball court, community garden, and miles of scenic hiking trails. Just 2 miles from Crabapple City Center and a short drive to Downtown Alpharetta and Milton, the location blends seclusion with convenience to premier dining, shopping, and entertainment. The Ridge at Sweet Apple is more than a neighborhood—it’s a curated lifestyle of luxury, nature, and community. Disclaimers: The home is to be built. Pictures depicted are artist renderings and measurements, built-in features, furnishings, and finishes depicted are for illustrative purposes only and may not be reflected in the final product. See agent for more details. Seller offering $40,000 Design Allowance on a Seller accepted contract on or before 2/15/26.
| 4 weeks ago | Listing first seen on site | |
| 4 weeks ago | Listing updated with changes from the MLS® |
Listings identified with the FMLS IDX logo come from FMLS and are held by brokerage firms other than the owner of this website and the listing brokerage is identified in any listing details. Information is deemed reliable but is not guaranteed. If you believe any FMLS listing contains material that infringes your copyrighted work, please click here to review our DMCA policy and learn how to submit a takedown request.
© 2017-2026 First Multiple Listing Service, Inc.


Did you know? You can invite friends and family to your search. They can join your search, rate and discuss listings with you.